Installation

Platform was designed to provide a swift install and de-rig. The main structure can be installed in around 60 mins from arrival at the performance location and taken down in well under an hour (PA and lighting rig/de-rig times may vary).  The stage can, when needed, be shut up securely at night

Platform is a versatile space that can be used as a fixed stage for the duration of an event or can be used as a pop up style event space in temporary locations with full technical production options available.

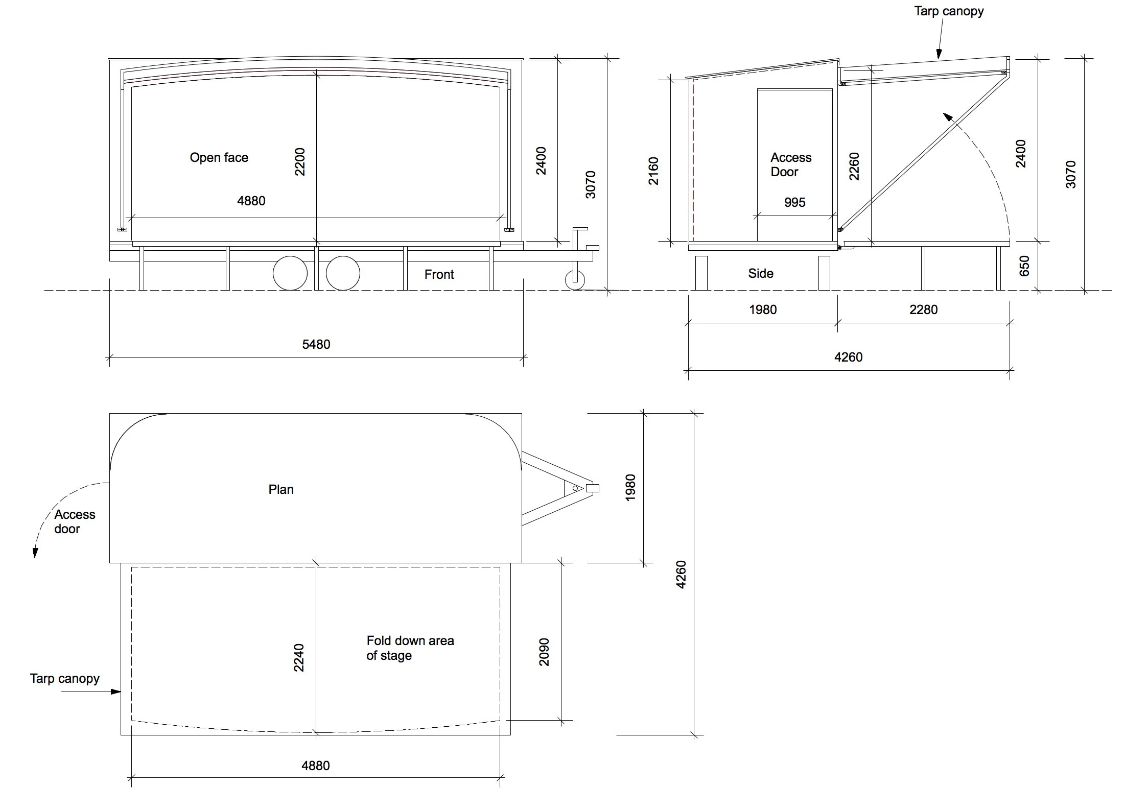
General dimensions

Dimensions:
Structure footprint when set up: 6m x 4.25m
Structure height: 3.1m
Performance area height: 2.2m to 2.4m (at apex)
Performance area: 5m wide x 4.2m deep.
Please check with us if more precise
dimensions are required.

All photos on this page credit: Luis Veloso